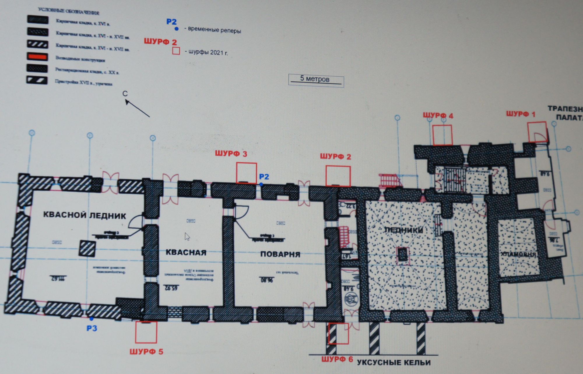
Поварня, построенная в XVI веке, – наиболее значительное хозяйственное сооружение монастыря. «Она расположена в одной линии с Введенской трапезной, – сообщил генеральный директор Кирилло-Белозерского музея-заповедника Михаил Шаромазов. – Здание поварни, вытянутой вдоль Сиверского озера, состоит из целого ряда помещений, различных по размеру и по назначению. Все они возникли постепенно, без единого плана, и последовательно пристраивались к наиболее древнему ядру – собственно поварне. Это самая ранняя часть здания состоит из двух палат: большой, «естественной» поварни, и более узкой, «квасной». В большой палате стояло шесть каменных очагов. В середине ее свода уже в последующее время проделано широкое отверстие, над которым проложена кирпичная труба. Первоначально дымоходы от каждого очага проходили отдельно внутри стены, и над зданием возвышалось 14 труб».

Более поздняя часть поварни, расположенная между древним ядром здания и трапезной палаты, также относится к XVI столетию. Она имеет два этажа. В нижнем – располагались ледники, в верхнем – разные помещения хозяйственного назначения. В одной из них сохранились остатки древней печи.

По другую сторону от древнего ядра поварни находится большая одностолпная палата, выстроенная на рубеже XVI-XVII веков – летний квасной погреб. В 1655 году над этим квасным погребом была сооружена каменная Оружейная палата. Описи монастырского имущества XVII-XVIII веков сохранили для нас перечень богатейшего собрания разнообразного оружия, хранившегося в этой палате. В 1786 году своды рухнули, и находившийся внизу квасной погреб пострадал от обломков кирпичной кладки.

Реставрационным работам предшествуют археологические. «Сейчас по всему периметру памятника идут раскопки. Несмотря на то, что здание построено в XVI столетии, история этого места значительно старше – в свое время под крышей Поварни была найдена неолитическая стоянка. Оказывается, на этом месте люди жили несколько тысяч лет назад!» – заявил гендиректор Кирилло-Белозерского музея-заповедника.

Археологические раскопки в Кириллове начались 2 сентября. Директор ООО «Вологодская археология» Алексей Угланов пояснил: «Поварня расположена на склоне Успенского холма, на одной части которого при раскопках в 2008 году сотрудниками НПЦ «Древности Севера» под руководством Ильи Папина на территории хламовни (помещение между зданиями Поварни и Трапезной палаты) и был обнаружен слой неолита, а в нем – значительное количество ямочно-гребенчатой керамики и кремневых осколков. Сейчас работы идут по периметру всего здания. Исходя из предыдущих исследований мы можем ожидать обнаружения участков неолита, но точно утверждать пока рано».

Алексей Угланов добавил, параллельно археологические работы ведутся и во внутренних помещениях Поварни – в здании квасного ледника разбирается завал, образованный строительным мусором. В случае обнаружения под ним непотревоженного культурного слоя работы остановятся, и дальнейшие исследования будут проходить в режиме археологических раскопок. Археологи признались: копают до глубины проектных отметок. Это необходимо, чтобы уберечь фундаменты памятника от разрушения.

«Если выкопаем до материка, фундаменты будут оголены, что приведет к их постепенному разрушению, – рассказывает руководитель ООО «Вологодская археология». – Дело в том, что фундамент Поварни не имеет между камней (огромных валунов) связующего, которое может быть представлено известковой проливкой или глиняной забутовкой. Здесь между камнями фундамента присутствует рыхлая земля с кирпичным боем и фрагментами извести, но жесткого связующего нет. Ввиду сложившейся ситуации действуем особенно аккуратно – после того, как выкапываем, закрываем обнаруженный слой укрывным материалом и сверху подсыпаем песком. Это делается для того, чтобы во время реставрационных работ слою не был нанесен урон».

Археологи уверены: всё самое интересное впереди, ведь с торца здания Поварни уже «дошли» до слоя XVII века и нашли остатки кладки старинного сооружения, о котором до этих раскопок было никому неизвестно. Раскопки продолжатся, а вместе с ними – и реставрационные работы, после завершения которых в Поварне разместятся музейные фондохранилища, а неолитическая стоянка будет представлена посетителям.

Теги: Кирилло-Белозерский музей-заповедник
Кирилло-Белозерский музей-заповедник

Новости по теме